Bay of Fires Serenity Meets Premium Modular Living
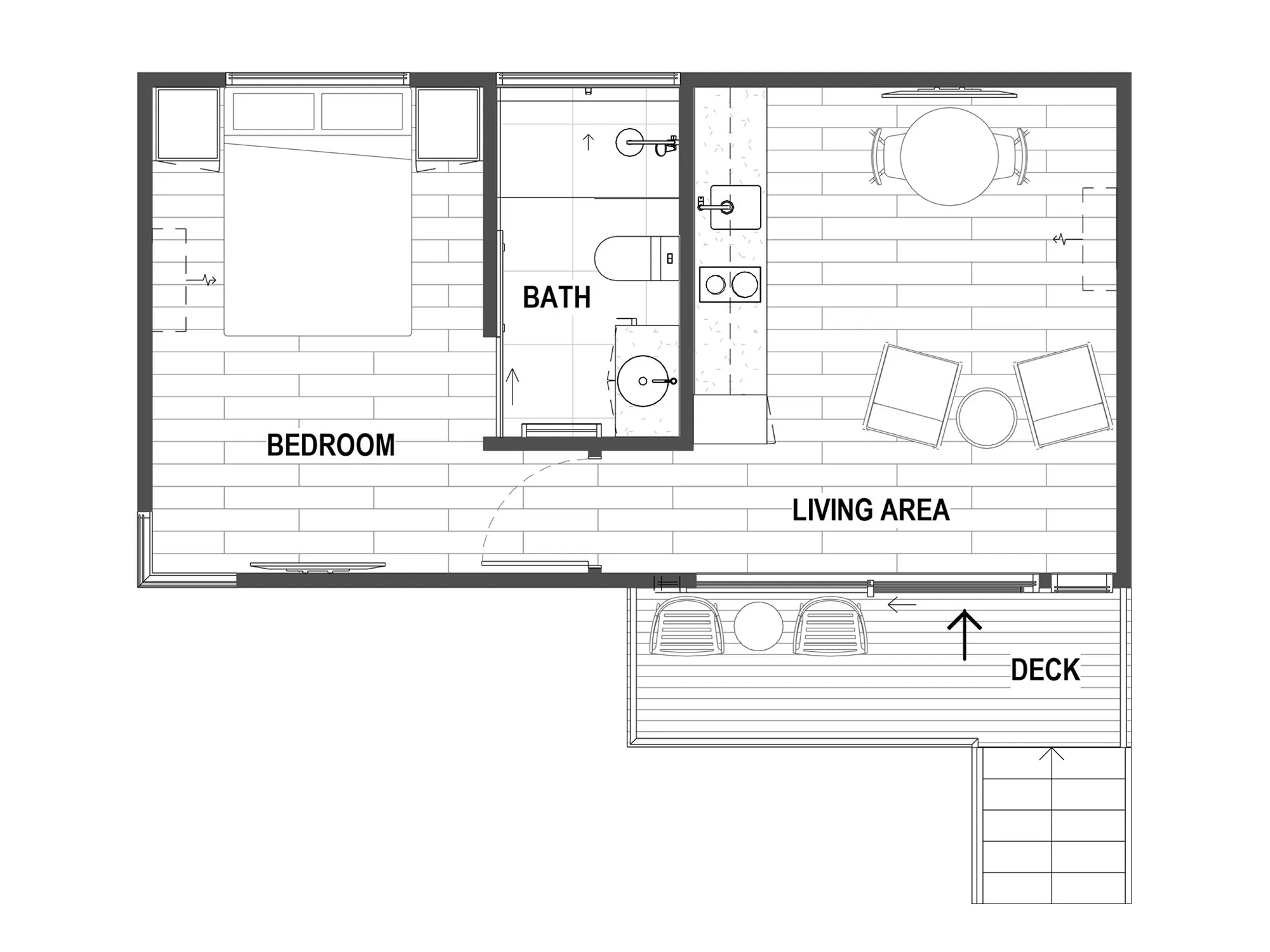
Perched on the scenic Georges Bay overlooking Coles Bay—just a three-hour coastal drive north from Hobart—this project provided five Pods for Tasman Holiday Parks at St Helens, an iconic gateway to the famous Bay of Fires. Comprising three 8-meter pods and two 12‑metre pods, each unit captures breathtaking views of the bay and surrounding natural beauty.
This site isn’t just stunning—it’s also one of the most picturesque drives and vistas in Australia, with guests treated to coastal panoramas every morning. St Helens offers a tranquil retreat that harmonises seamlessly with World Heritage-listed landscapes and we are honoured with the opportunity of having our ModnPods installed there.
One of the standout achievements of this project was the successful transportation of the pods from Queensland to Tasmania — a journey spanning over 2400 km and requiring barge transit for the final leg. This complex logistics operation highlights not only our delivery capability but also the structural integrity and durability of our pods, purpose-built to withstand long-haul transport across road and sea. It’s a testament to ModnPods’ ability to deliver all-terrain modular solutions to some of the most remote and rugged environments in Australia.
Some of our favourite highlights of this project are:
- Coastal climate resilience: Manufactured to withstand all kinds of weather.
- Long-haul durability: Engineered to survive cross-country travel and sea transport, proving ModnPods are built for all conditions.
- Fast, efficient manufacturing using Modern Methods of Construction (MMC) that reduces both on-site disruption and waste.
- Energy-efficient design built to Passive House principles, with all our pods achieving a 7-star energy rating.
- Elevation & views: Each pod was positioned to maximise vista over Georges Bay and Bay of Fires.
- Modular blend with natural beauty: A luxury modular solution set in one of Australia’s most majestic coastal regions.








