Premium Pods in One of Queensland’s Most Spectacular Natural Settings
Located within one of Australia’s most stunning national parks, this project for Breeze Holiday Parks brought nine ModnPods to Carnarvon Gorge — a remote, seasonal destination known for its dramatic sandstone cliffs, walking tracks, and ancient Aboriginal rock art.
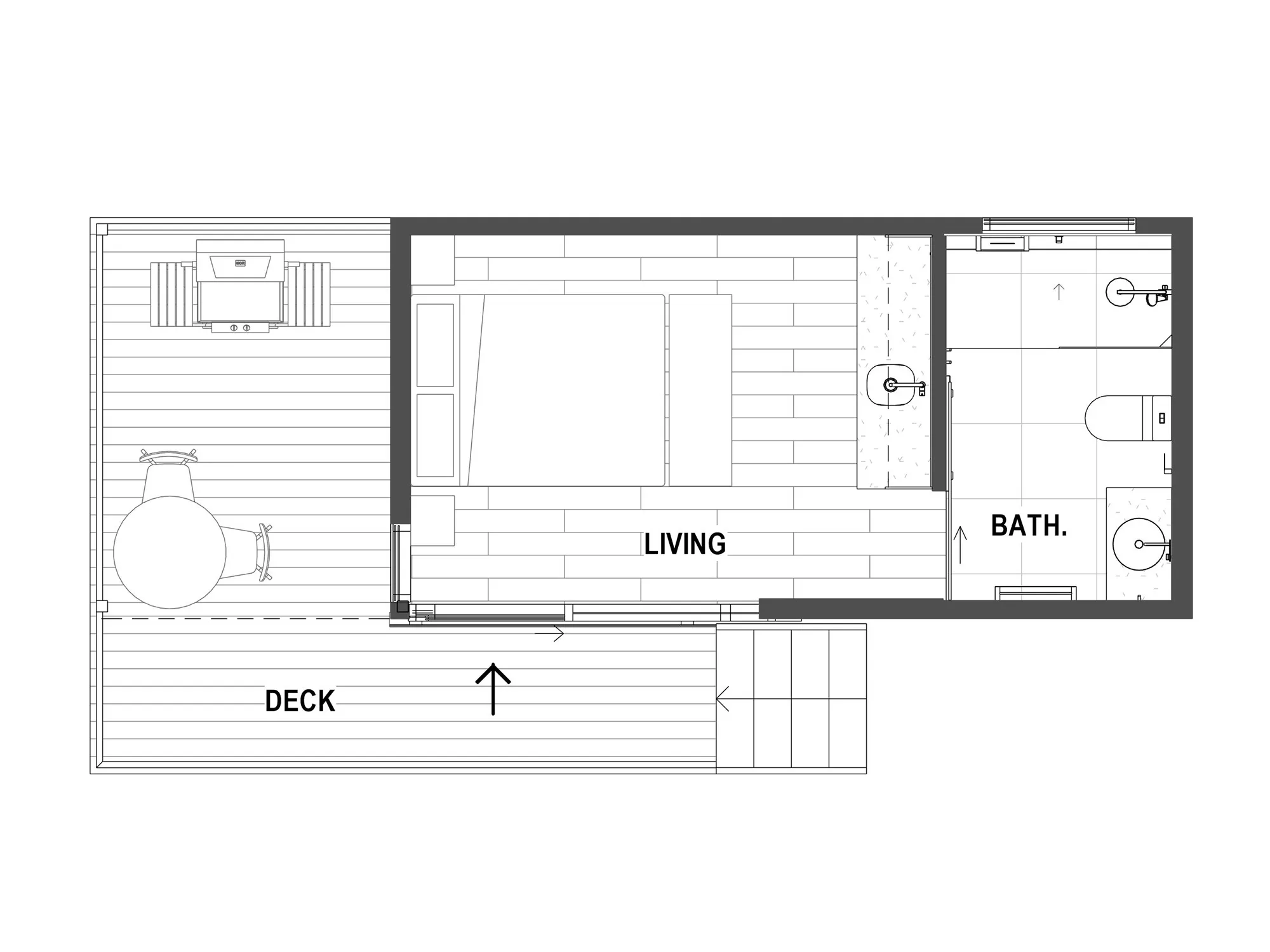
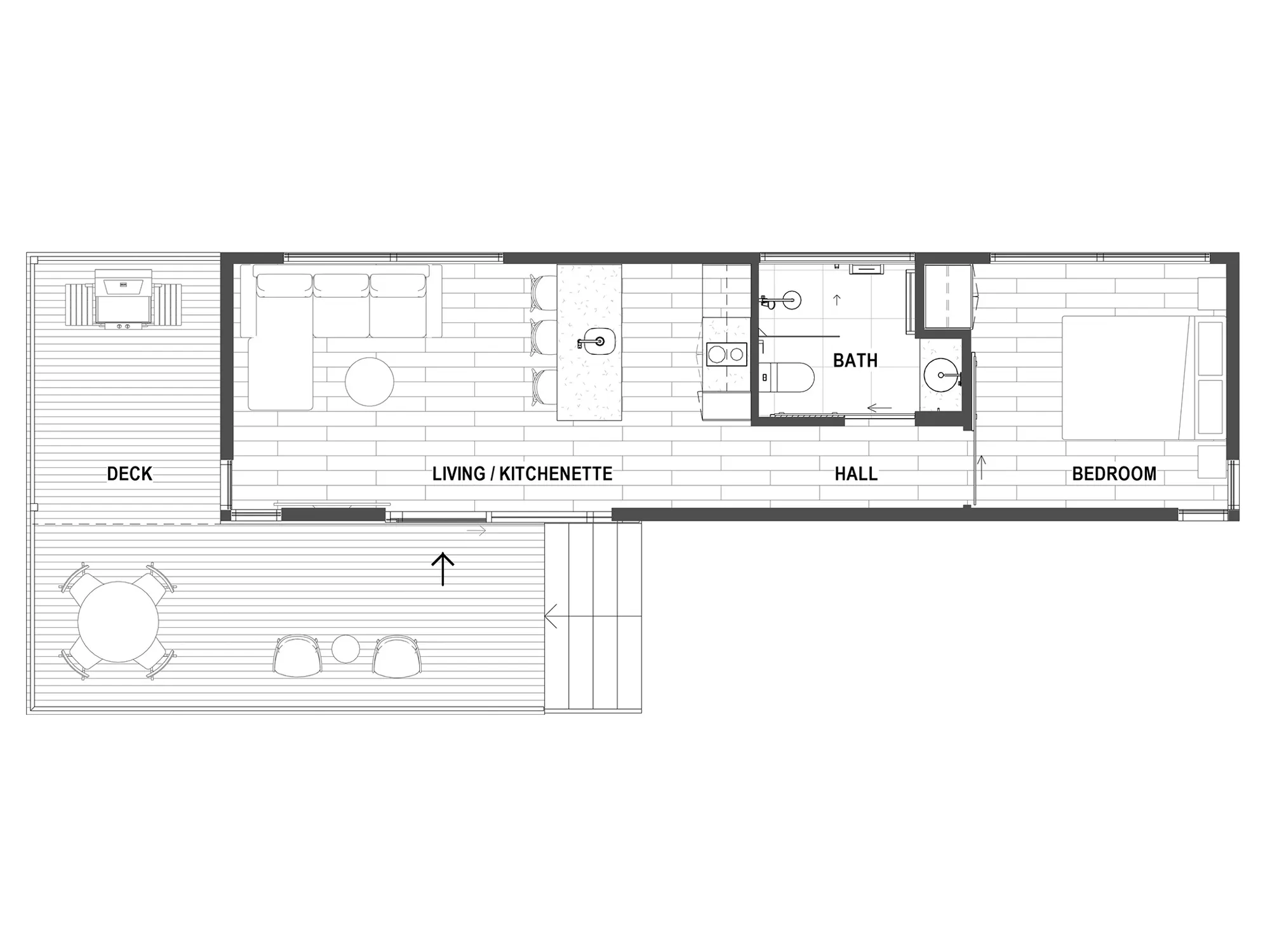
With limited existing accommodation options in the area, Breeze sought a premium, self-contained solution that could elevate the guest experience while blending with the natural environment. ModnPods delivered nine modular units purpose-built for durability, comfort, and seamless integration into the landscape.
Each pod is designed to operate efficiently in remote conditions, where guests are encouraged to bring their own supplies and enjoy a deeper connection with nature. Since installation, our Pods have become some of the park’s most popular accommodation offerings — proof that thoughtful, high-quality design makes a lasting impact, even in the most untouched locations.
This project showcases ModnPods’ ability to deliver remote modular solutions with elegance, resilience, low-impact installation and environmental conscious solutions.








