Modular Housing with a Mission to Support Regional Workforces
In partnership with Fulton Trotter Architects, ModnPods delivered a thoughtfully designed modular housing solution for Ridgehaven — a regional aged care provider in Queensland facing critical challenges in staff attraction and retention.
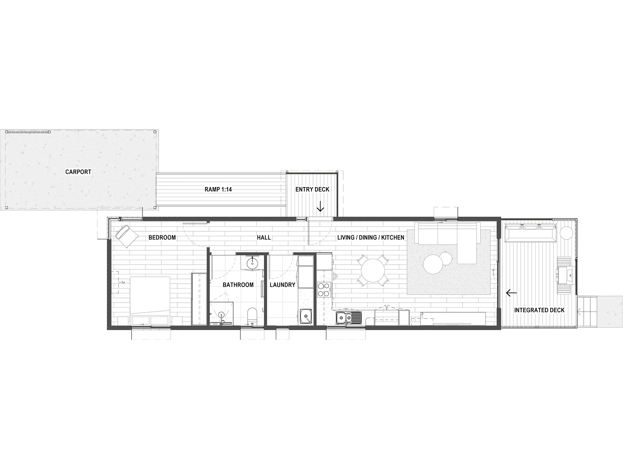
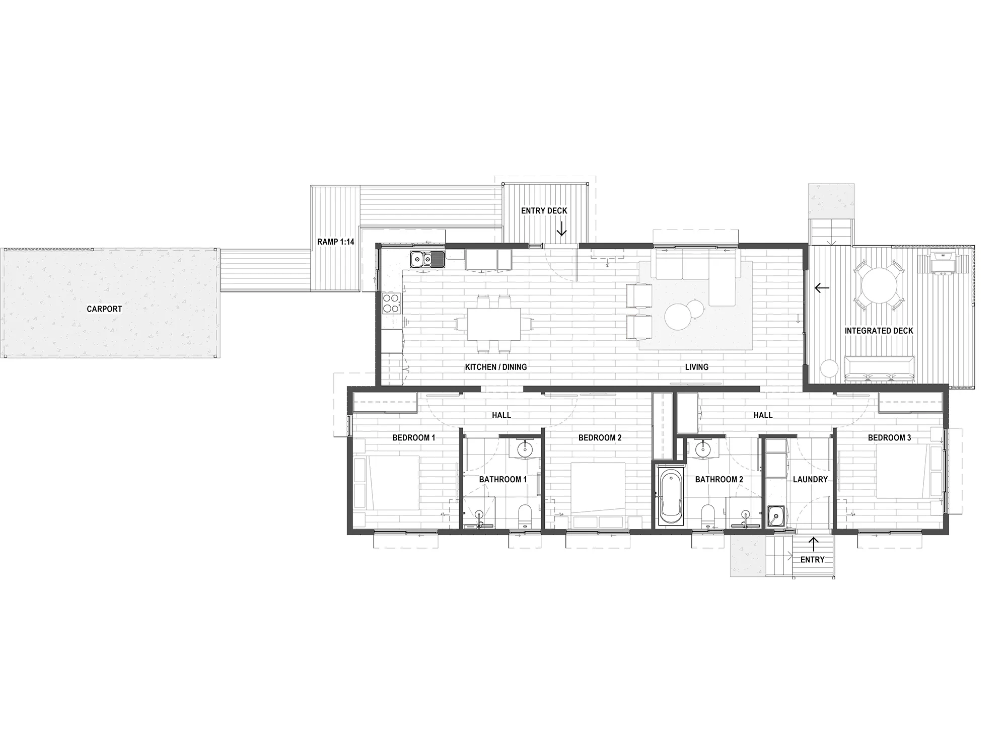
The brief called for high-quality, purpose-built accommodation that could support long-term staff living in a remote setting. The result: three custom homes, including two one-bedroom units and a three-bedroom family home, all designed to provide comfort, privacy, and a true sense of home.
This project was delivered efficiently with minimal disruption to surrounding residents, thanks to our streamlined manufacturing and installation approach. Externally, the finely detailed cladding gives the homes a crisp architectural presence. Internally, stained ply linings create a warm, inviting atmosphere that supports liveability and wellbeing.
Ridgehaven reflects what ModnPods does best — delivering modular solutions that not only meet a functional need but also uplift the people they’re built for.







