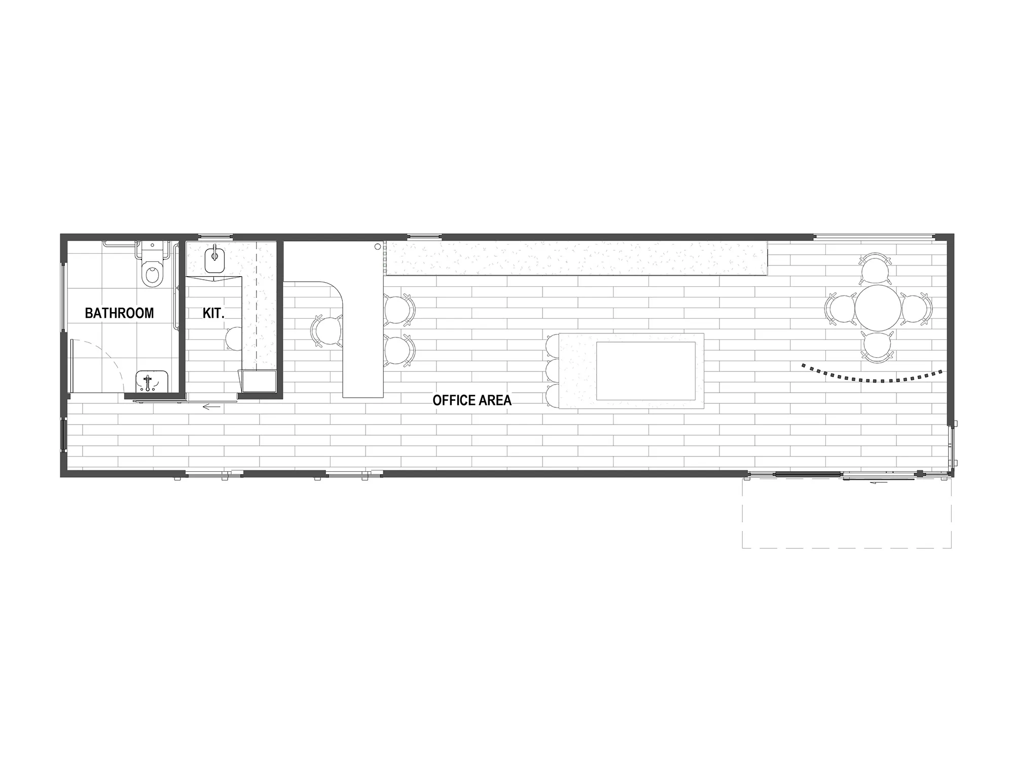
Cedarwood needed a fast, high-quality sales office solution that complemented their upcoming master-planned housing development—without compromising on sustainability. Leveraging one of our standard designs, they selected a 15m x 4.2m modular sales office with minimal customisation, ensuring rapid delivery and installation.
Inside, a bespoke showroom sales table features an undermount, illuminated glass display, creating an impressive focal point for client presentations. To power operations sustainably, the office is equipped with our signature Red Earth 10kVA Honey Badger battery system, offering up to 26.4kW of storage and paired with 7.8kW of rooftop solar to provide clean, continuous energy.
The result is a modern, efficient, and environmentally conscious sales hub—delivered on time and ready to impress.







