Premium Coastal Pods with Off-Grid Capability

ModnPods delivered 14 architecturally designed, high-spec modular Pods to Reflections Holiday Park in Hawks Nest, NSW — a stunning beachside location just 30 minutes from Newcastle. Nestled between bushland and the ocean, this project was designed to maximise guest experience while standing up to the challenges of a coastal climate.

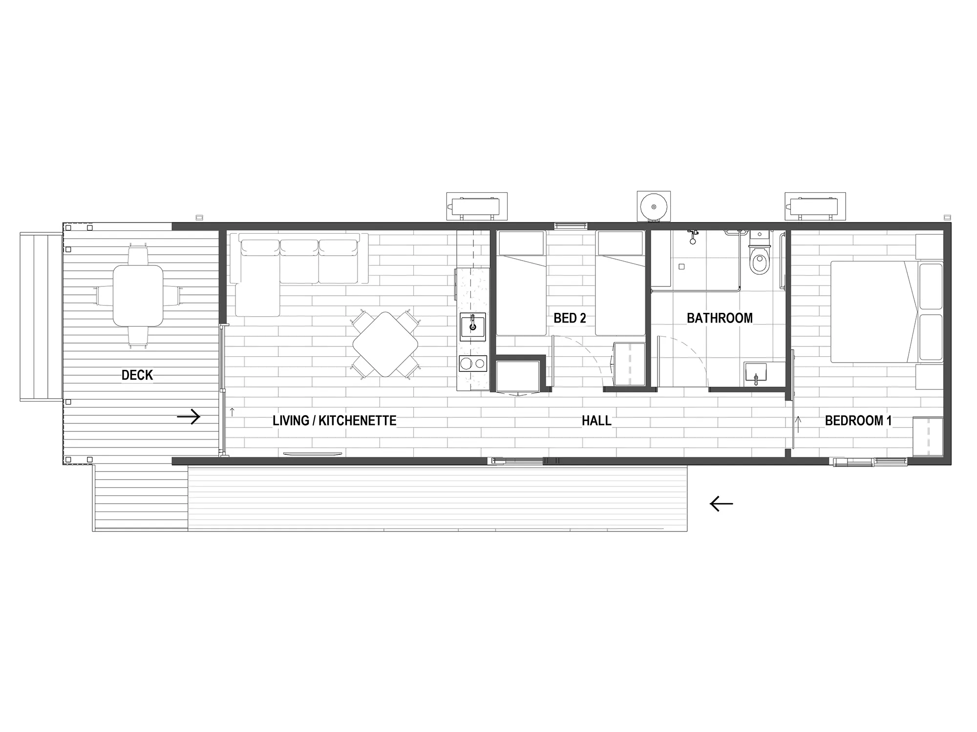
Built to a premium standard, each Pod features:

  • NoVOC BB Hoop Ply interiors
  • Coastal Colorbond Standing Seam cladding
  • Integrated solar panels and inverters
  • Heat pump hot water systems
  • Rainwater tanks

These elements come together to create a semi off-grid, environmentally conscious setup that delivers long-term performance without compromising comfort or aesthetic.

As one of Reflections’ highest-rated accommodation offerings, the Hawks Nest project reflects ModnPods’ ability to elevate the holiday park experience through innovation, attention to detail, and modular excellence.

Nature at Your Doorstep, City on the Horizon

Nestled on the edge of Lane Cove National Park, this project for Discovery Parks features six architecturally designed ModnPods — with five more soon to join. Just 20 minutes from the heart of Sydney, this site offers a rare blend of natural immersion and urban accessibility.

Built with an environmental focus, the Lane Cove pods incorporate smart materials and energy-efficient design to Passive House standards—reducing environmental impact while enhancing guest comfort.

Perched above leafy trails and forested valleys, each pod opens onto a private deck with sweeping views — where guests can relax, reconnect, and even glimpse the city skyline beyond the treetops. The location is a favourite for nature lovers, hikers, and families wanting to escape the city without leaving it behind.

This project is a clear example of how ModnPods delivers thoughtful, low-impact accommodation that is built for the future — and built for the bush.

Coastal Durability Meets Design

ModnPods proudly partnered with Ingenia Holiday Parks — our very first client — to deliver a bespoke modular accommodation project on their spectacular 28-acre property at Broken Head, Byron Bay. Just a short 200-metre walk to the beach, the site offers guests a unique blend of coastal serenity and premium comfort.

The development includes five 8-metre Pods, one 12-metre Pod, and one Duplex, each designed to harmonise with the natural environment while standing strong against the challenges of a coastal climate — from salt air to heavy winds.

The pods feature locally sourced coastal materials, energy-efficient, and smart design to maximise liveability while minimising environmental impact. Our off-site manufacturing process enabled a fast, streamlined installation with minimal disruption to the park and surrounding community. 

This Byron Bay project exemplifies ModnPods’ expertise in delivering high-quality, standardised modular solutions for leading tourism operators — creating spaces that connect people with iconic Australian destinations without compromising the planet.

Premium Pods Built for the Harsh Outback

ModnPods delivered 14 premium modular pods for Discovery Parks in Katherine, Northern Territory — a region known for its breathtaking landscapes and extreme climate conditions. The pods were transported over a three-day journey to reach this remote location, where they now sit overlooking the iconic Australian outback.
Designed and built to endure the Territory’s high temperatures, strong winds, and heavy seasonal rains, these pods were tailored to meet Discovery’s stringent performance requirements. Every detail — from materials to thermal insulation — was selected to withstand the unique demands of the region while ensuring long-term comfort for guests.

As one of Discovery’s most profitable parks, the investment in premium-quality modular accommodation has added both value and resilience to their offering. This project is a testament to how ModnPods’ high-performance builds can thrive in remote, challenging environments — all while enhancing the guest experience.

Bay of Fires Serenity Meets Premium Modular Living

Perched on the scenic Georges Bay overlooking Coles Bay—just a three-hour coastal drive north from Hobart—this project provided five Pods for Tasman Holiday Parks at St Helens, an iconic gateway to the famous Bay of Fires. Comprising three 8-meter pods and two 12‑metre pods, each unit captures breathtaking views of the bay and surrounding natural beauty.

This site isn’t just stunning—it’s also one of the most picturesque drives and vistas in Australia, with guests treated to coastal panoramas every morning. St Helens offers a tranquil retreat that harmonises seamlessly with World Heritage-listed landscapes and we are honoured with the opportunity of having our ModnPods installed there.
One of the standout achievements of this project was the successful transportation of the pods from Queensland to Tasmania — a journey spanning over 2400 km and requiring barge transit for the final leg. This complex logistics operation highlights not only our delivery capability but also the structural integrity and durability of our pods, purpose-built to withstand long-haul transport across road and sea. It’s a testament to ModnPods’ ability to deliver all-terrain modular solutions to some of the most remote and rugged environments in Australia.

Some of our favourite highlights of this project are:

  • Coastal climate resilience: Manufactured to withstand all kinds of weather.
  • Long-haul durability: Engineered to survive cross-country travel and sea transport, proving ModnPods are built for all conditions.
  • Fast, efficient manufacturing using Modern Methods of Construction (MMC) that reduces both on-site disruption and waste.
  • Energy-efficient design built to Passive House principles, with all our pods achieving a 7-star energy rating.
  • Elevation & views: Each pod was positioned to maximise vista over Georges Bay and Bay of Fires.
  • Modular blend with natural beauty: A luxury modular solution set in one of Australia’s most majestic coastal regions.

Premium Pods in One of Queensland’s Most Spectacular Natural Settings

Located within one of Australia’s most stunning national parks, this project for Breeze Holiday Parks brought nine ModnPods to Carnarvon Gorge — a remote, seasonal destination known for its dramatic sandstone cliffs, walking tracks, and ancient Aboriginal rock art.

With limited existing accommodation options in the area, Breeze sought a premium, self-contained solution that could elevate the guest experience while blending with the natural environment. ModnPods delivered nine modular units purpose-built for durability, comfort, and seamless integration into the landscape.

Each pod is designed to operate efficiently in remote conditions, where guests are encouraged to bring their own supplies and enjoy a deeper connection with nature. Since installation, our Pods have become some of the park’s most popular accommodation offerings — proof that thoughtful, high-quality design makes a lasting impact, even in the most untouched locations.

This project showcases ModnPods’ ability to deliver remote modular solutions with elegance, resilience, low-impact installation and environmental conscious solutions.

Share This

Select your desired option below to share a direct link to this page.
Your friends or family will thank you later.